It’s our commitment to build you a world-class and high-quality residential project with a fixed-price agreement.
Project values fall into three distinct categories:
Build value – This is the total value to fully complete the build with all premium inclusions and means that the property is ready to move into with nothing left to spend.
Planning fees and charges - This includes payment of all home warranty and associated insurances, ACT Government fees, engineers, and related plans and certificates and building approvals.
Utility connections - These include connecting sewage, stormwater, electrical line +sub board, communications, site excavation and preparation for a standard block (80% of properties fall into this category).
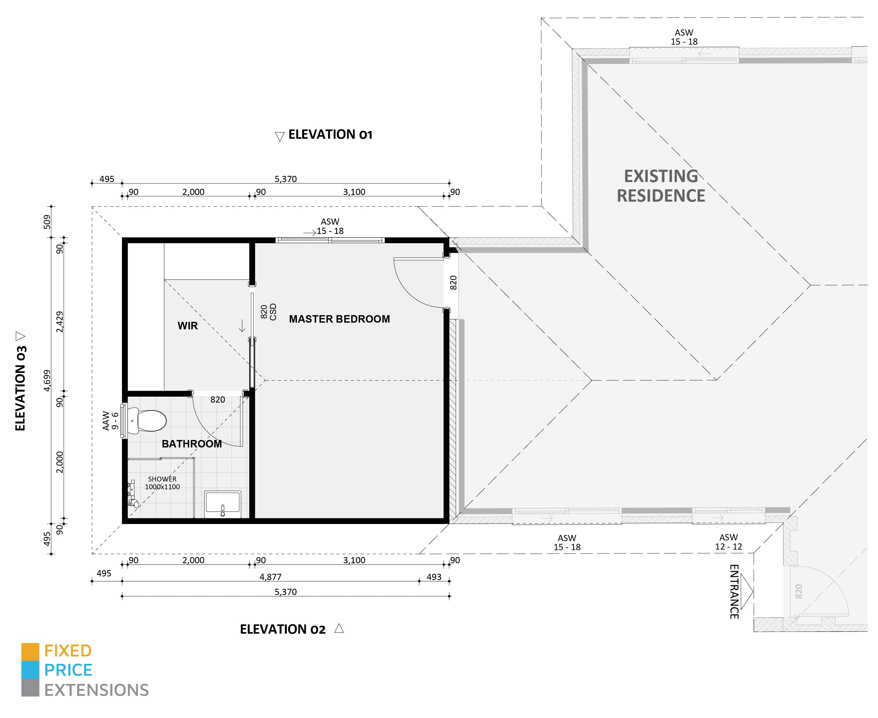
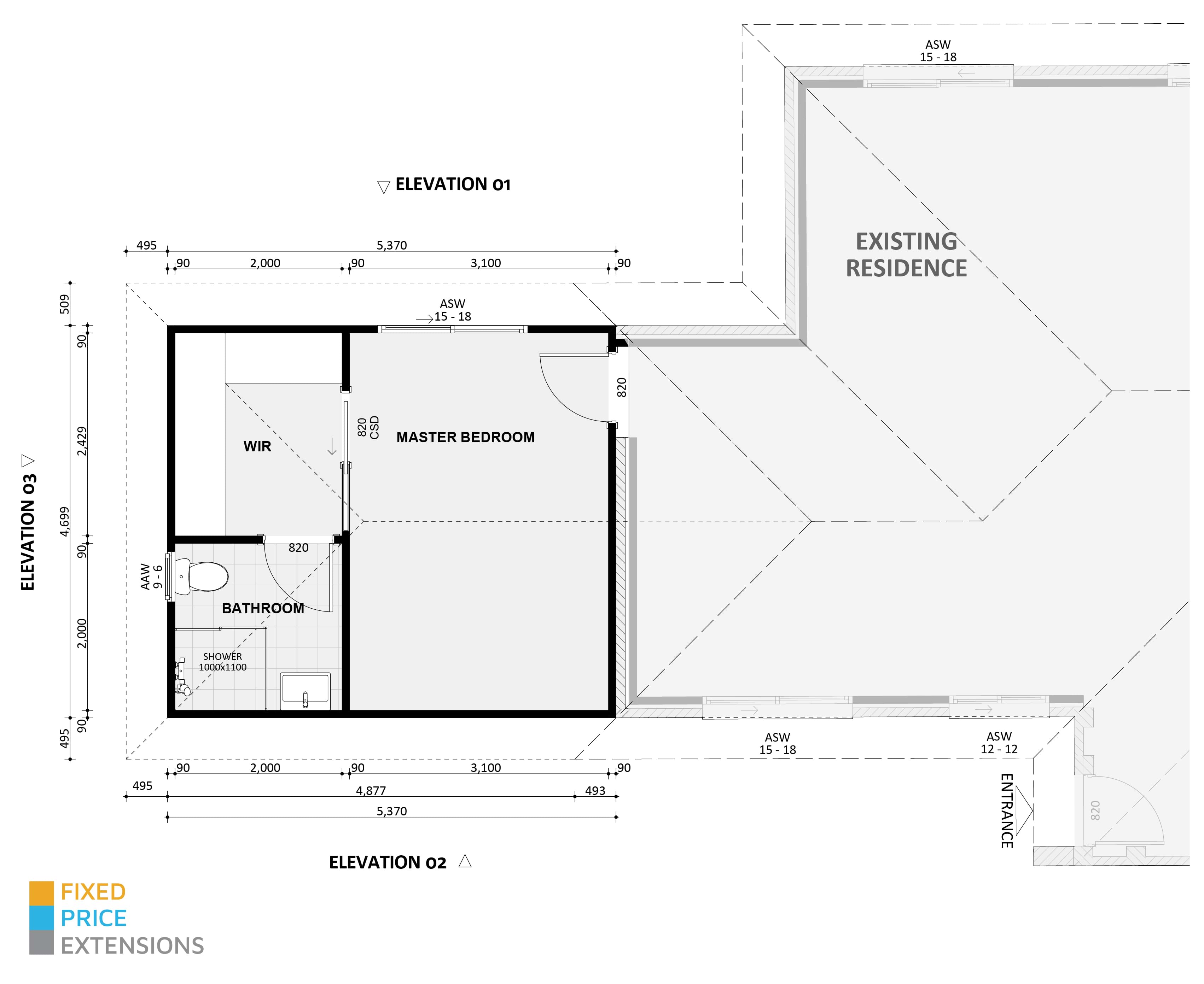
As an example, the values of the three components to build Design 1165 are listed below:
- Build value – $169,996.52 inclusive of GST
- Planning fees and charges – $25,023.70 inclusive of GST, approximately 12% of the value of the total project
- Utility connections – $17,203.05 inclusive of GST, approximately 8% of the value of the total project
- Total value –
$212,223.26 inclusive of GST
Before you commit to working with us, we will provide a customised, detailed, fixed-price guarantee outlining all values and what you get, which is enshrined in our HIA agreement and supported by our unique safety time and quality guarantees.
Please complete our Free Planning Assessment Report form to establish if we can build Design 1165.
Or call 1300 979 658 (7 days) or fill in the enquiry form (to the left). Find out if we can build this on your property by booking your free Planning Assessment Report today!